

湖州301平米以上別墅輕奢風格裝修效果圖
★ 輕奢格調
輕奢主義,是一種簡明、輕快、低調的生活格調,在當下都市生活中,許多人還缺乏一擲千金追求奢華的能力,但是內心還是不放棄追求更高層次的生活方式,而這種低調的輕奢格調,便受到強烈的追捧。
★ 生活品質
一家人的宜居空間,不只是一種審美上的視覺享受,同時其功能舒適性也要滿足家人需求,本案便在輕奢基礎之上,完善居家功能,優化家人生活動線,筑就更加舒適便捷的溫馨生活。

湖州301平米以上別墅輕奢風格裝修效果圖
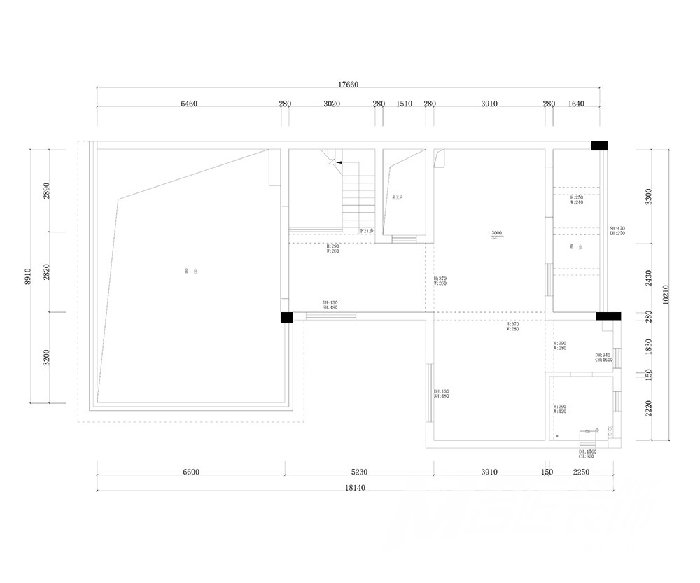
▲ 地下室平面圖

湖州301平米以上別墅輕奢風格裝修效果圖
▲ 地下室布局圖
利用豐富的創意展現生活的高姿態,擁有高格調的大理石裝飾茶室地面,搭配淺色調的木飾面墻面,與傳統中式桌椅糅合,展現別具格調的新時尚,安靜雅致的環境氛圍,無論獨自品茗還是會客閑聊,都是一處絕佳的場所。

湖州301平米以上別墅輕奢風格裝修效果圖
- 別墅裝修-茶室 -
延續了茶室的設計基調,保證了別墅地下室空間風格的和諧統一,干凈利落的環境,搭配幾幅現代簡約的畫作,透露著時尚潮流氣息。

湖州301平米以上別墅輕奢風格裝修效果圖
- 別墅裝修-桌球室 -
觀影娛樂是一種很好的放松方式,所以柔軟的地面是必不可少的元素,灰色的地毯延續著全屋的基礎色調,踏入影音室的一瞬間,就會被這種柔軟舒適的感受,時尚色彩營造的氛圍所感染,徹底的放松自己的身心。

湖州301平米以上別墅輕奢風格裝修效果圖
- 別墅裝修-影音室 -

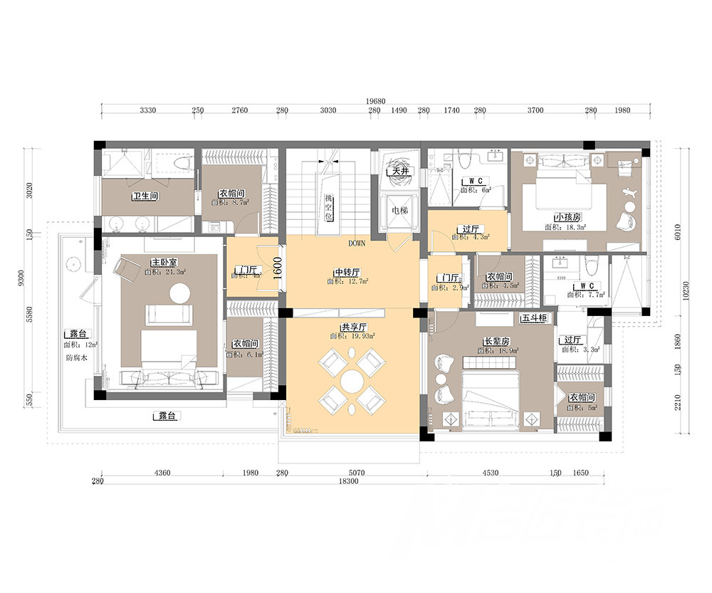
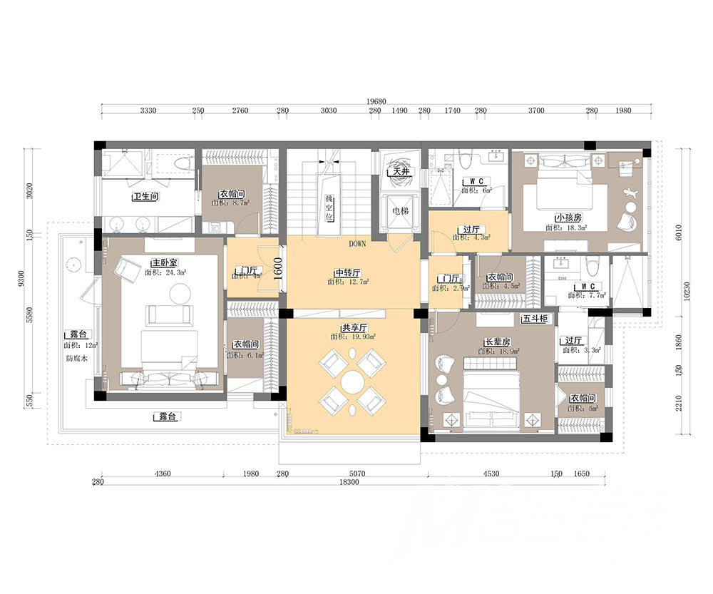
湖州301平米以上別墅輕奢風格裝修效果圖
▲ 別墅一層平面圖

湖州301平米以上別墅輕奢風格裝修效果圖
▲ 別墅一層布局圖
花開富貴,是一種對生活的美好期許;精致大氣,是對生活品味的一種宣揚;圖案素雅的矮腳柜,搭配優美的銀杏葉畫作及散發蓬勃朝氣的鮮花,在木飾面的映襯下,彰顯高顏值的輕奢品味。

湖州301平米以上別墅輕奢風格裝修效果圖
- 別墅裝修-玄關 -
來到客廳,全方位的大理石裝飾,展現出大宅別墅應有的恢弘大氣,看似裝飾布局簡潔清爽的電視區域,實則蘊含著匠人們精心巧琢。
完美復原效果圖的面貌,絲毫不減的輕奢感,大理石塑造的電視背景墻,書刻著“青山披綠影,銘居出豪門”的語句,彰顯大宅風范,又為家宅賦予了中式傳統府邸的雅致高貴;同時電視背景墻拐角處也巧妙的利用了空間,做了木隔板,用于收納,可謂美觀與實用并存。

湖州301平米以上別墅輕奢風格裝修效果圖
- 別墅裝修-客廳 -
沙發區域,深邃穩重的黑色皮質沙發,端莊大氣,而簡約小巧的茶幾,更顯精致巧妙,使得客廳氛圍穩重又不失活潑,融洽舒適,在此會客也不會造成雙方的拘謹。

湖州301平米以上別墅輕奢風格裝修效果圖
- 客廳 -
大理石與生態板材的激烈碰撞,都市味道與自然氣息的完美協調,令這塊被木飾面環繞的飲茶區域變得更為清靜宜人。

湖州301平米以上別墅輕奢風格裝修效果圖
- 別墅裝修-品茶區 -
四面合圍,青磚黛瓦,閑將怡情踏幽徑,一片濃陰帶露噙,庭院的設計同室內一樣重要,從水電規劃,到精致的悉心設計,只為筑就一方閑適怡人的休閑環境。

湖州301平米以上別墅輕奢風格裝修效果圖
- 別墅裝修-庭院 -
雖無小橋流水山花野果,而這一方綠植鮮花為生活帶來盎然生機,與家人共享世間最為幸福溫暖的時光。

湖州301平米以上別墅輕奢風格裝修效果圖
- 庭院 -
蜿蜒的青石板路,穿梭綠意之中,仔細品品,卻有大隱于市的輕松之感。

湖州301平米以上別墅輕奢風格裝修效果圖
- 庭院 -

湖州301平米以上別墅輕奢風格裝修效果圖
▲ 別墅二層平面圖

湖州301平米以上別墅輕奢風格裝修效果圖
▲ 別墅二層布局圖
大理石鋪設的樓梯,讓空間更富有變化的光澤,層次分明,在展現家宅功能性的同時散發著高級美感。

湖州301平米以上別墅輕奢風格裝修效果圖
- 別墅裝修-樓梯 -
宛若青山綠水的背景墻,為臥室賦予了詩意般的清凈雅致,在這種高格調的氛圍之中,品味溫馨的生活味道,享受舒適的休息時光。

湖州301平米以上別墅輕奢風格裝修效果圖
- 別墅裝修-主臥 -
采用不同色調以及材質的家具予以區分,打造出極簡輕奢的高雅生活風,有生活,更有溫度。

湖州301平米以上別墅輕奢風格裝修效果圖
- 主臥 -
暖黃色與瑪瑙綠的邂逅,經典與時尚兼具,以其高飽和度的色澤,不僅產生舒適的視覺效果,也散發著高格調的輕奢質感。

湖州301平米以上別墅輕奢風格裝修效果圖
- 主臥 -
不同的質感延展出不同情調的空間視覺,不刻意,不夸張,舒適自在,明晰的干濕分離,也更好的保證了主臥衛生間的干凈整潔,方便清理。

湖州301平米以上別墅輕奢風格裝修效果圖
- 別墅裝修-主臥衛生間 -
一幅花鳥圖,一幅花開富貴,吉祥如意的寄托,素雅有格調的背景墻輔以木飾面,有質感也有濃郁的自然芬芳。

湖州301平米以上別墅輕奢風格裝修效果圖
- 別墅裝修-次臥 -
以白色搭配孔雀藍,使空間充滿愜意,展現出有別于現代主義冷冽的輕奢感。

湖州301平米以上別墅輕奢風格裝修效果圖
- 次臥 -

湖州301平米以上別墅輕奢風格裝修效果圖
▲ 別墅三層平面圖

湖州301平米以上別墅輕奢風格裝修效果圖
▲ 別墅三層布局圖
寬敞明亮的休閑空間,是一處享受閑暇時光的好去處,精致簡約的家居陳設,給人清爽的感覺,準備幾份茶點,與家人享受閑暇時光,領略窗外美景。

湖州301平米以上別墅輕奢風格裝修效果圖
- 別墅裝修-休閑區 -
多元化的材料組合搭配,豐富空間的色彩層次和質感,簡潔獨特的現代設計語言,讓輕奢風的表達方式更加新穎時尚,書房整體奢而不喧,于溫暖陽光之中,靜享書香時光。

湖州301平米以上別墅輕奢風格裝修效果圖
- 別墅裝修-書房 -
超乎想象的輕奢生活格調,高級品味的完美復現理想,筑就輕奢風范的家
廣州201-300平米輕奢風格荔園悅享星醍裝修設計案例
輕奢風格201-300平米別墅
珠海101-200平米輕奢風格雅居樂山海郡家裝設計案例
輕奢風格101-200平米三居室
廣州101-200平米輕奢風格保利云禧家裝設計效果圖
輕奢風格101-200平米四居室
廣州301平米以上輕奢風格蘇都花園家裝設計案例
輕奢風格301平米以上別墅
廣州101-200平米輕奢風格室內設計效果圖
輕奢風格101-200平米三居室
廣州101-200平米輕奢風格峰景大夏家裝設計案例
輕奢風格101-200平米三居室
廣州101-200平米輕奢風格裝修設計效果圖
輕奢風格101-200平米三居室
廣州100平米以下輕奢風格室內裝修設計案例
輕奢風格100平米以下三居室