
家永遠是我們最牽掛的一個地方,一個溫馨的家,一個有愛的家,是可以用空間的分割及軟裝搭配來打造的,我們需要回歸最初的愛。本案以簡歐風格為主!
設計說明:此戶型采用簡潔浪漫的簡歐設計風格,本戶型方正規矩,布局基本合理,原戶型結構上進行局部的改動,在裝飾上做了精心的布置。客廳天花引用八角異形天花處理,穩重而不失靈動,墻面爵士白的大理石使空間更加的奢華而不失清晰浪漫,黑白色系的搭配跟現在的元素融余一體,拋棄傳統歐式的豪華穩重,結合現在元素的色彩配色,歐式又不失現代,整體風格溫馨而不失個性。

佛山201-300平米五居歐式風格裝修效果圖
室內裝修效果圖-平面圖

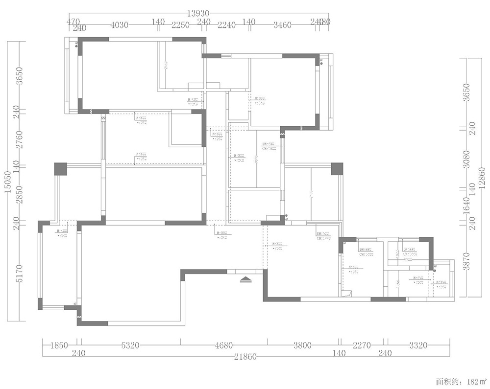
佛山201-300平米五居歐式風格裝修效果圖
室內裝修效果圖-戶型圖

佛山201-300平米五居歐式風格裝修效果圖
室內裝修效果圖-客廳

佛山201-300平米五居歐式風格裝修效果圖
室內裝修效果圖-主臥

佛山201-300平米五居歐式風格裝修效果圖
室內裝修效果圖-次臥

佛山201-300平米五居歐式風格裝修效果圖
柳州101-200平米歐式風格東方名都家裝設計效果圖
歐式風格101-200平米五居室
惠州101-200平米歐式風格利和豪庭家裝設計效果圖
歐式風格101-200平米四居室
廣州301平米以上歐式風格世紀豪園裝修設計案例
歐式風格301平米以上別墅
廣州101-200平米歐式風格寶峰春天裝修設計效果圖
歐式風格101-200平米四居室
景德鎮101-200平米歐式風格嘉禾室內設計效果圖
歐式風格101-200平米三居室
嘉興201-300平米歐式風格盛世香堡室內裝修設計案例
歐式風格201-300平米別墅
廣州101-200平米歐式風格室內裝修設計案例
歐式風格101-200平米三居室
佛山100平米以下歐式風格順景花園裝修設計效果圖
歐式風格100平米以下三居室